Découvrez 'Le Lumineux', un appartement traversant de 60 m2, situé au 4e étage d'une copropriété bien entretenue à Annemasse. Baigné de lumière naturelle, sans vis-à-vis et offrant une vue totalement dégagée, ce bien séduit par son agencement intelligent, ses nombreux rangements et son fort potentiel d'évolution, notamment la possibilité de le transformer en T3.
Un appartement idéal aussi bien pour une résidence principale que pour un investissement locatif stratégique.
Les points forts - Appartement traversant et très lumineux - Vue dégagée sans aucun vis-à-vis - Possibilité de transformation en T3 - Cuisine récente, équipée et séparée - Séjour spacieux et agréable avec balcon - Nombreux rangements intégrés + un réduits - Cellier indépendant actuellement utilisé en bureau - Une Chambre confortable - Salle de bain + WC séparés - Achat idéal en résidence principale ou investissement - Nombreuses places de parking libre dans la copropriété
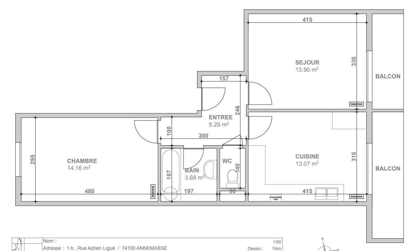
Description détaillée Dès l'entrée, 'Le Lumineux' offre une circulation fluide et fonctionnelle. Un couloir avec de nombreux rangements et un reduit dessert intelligemment les différentes pièces de l'appartement.
Le séjour spacieux profite d'une excellente luminosité grâce à son balcon et à sa hauteur d'étage. Il offre un espace de vie agréable, facilement modulable, avec la possibilité de créer une chambre supplémentaire pour transformer le bien en T3.
La cuisine récente, entièrement équipée et séparée, permet de cuisiner confortablement tout en conservant un espace de vie distinct. Un cellier aménagé en bureau peut également servir d'espace de rangement complémentaire. Côté nuit, vous trouverez : - Une chambre confortable - Une salle de bain - Un WC séparé, apportant un vrai confort au quotidien
L'ensemble est lumineux, calme et agréable à vivre, avec une vraie sensation d'espace.
Informations techniques & copropriété - Charges de copropriété 544EUR / trimestre, comprenant : Chauffage, entretien et charges des parties communes, fonds de travaux et gestion - Copropriété soigneusement entretenue - Toiture refaite - Chaudière remplacé récement - Aucun travaux de prévu dans la copropiété
Le secteur Annemasse
Situé à Annemasse, 'Le Lumineux' bénéficie d'un emplacement stratégique, à proximité immédiate : des transports en commun, des commerces, des écoles, des axes menant rapidement à Genève
Un secteur recherché, aussi bien par les frontaliers que par les investisseurs, offrant une forte demande locative et un excellent potentiel de valorisation.
Une opportunité à ne pas manquer, contactez-nous dès maintenant pour organiser une visite et découvrir tout ce que ce bien peut vous offrir.
Eveillons votre conscience immobilière et bâtissons votre avenir ensemble !
Les informations sur les risques auxquels ce bien est exposé sont disponibles sur le site Géorisques : https://www.georisques.gouv.fr
Selena Duca & Lucie Tihay Vos conseillères spécialistes en immobilier EVEIL IMMOBILIER SAS 362 Avenue Marie Curie, 74160 Archamps 890 607 898 RCS Thonon-les-Bains Transactions sur immeubles et fonds de commerce SAS au capital de 15 000 EUR CPI 7401 2020 000 045 192 CCI de Haute-Savoie Ville du greffe : THONON-LES-BAINS Honoraires à la charge du vendeur
60 m²
3 583 €
2
1
1
1
4 sur 5
1977
Oui
Oui
Oui
Oui (164 lots)
Consommations énergétiques
Logement économe
195
Logement énergivore (kWhEP/m2/an)
Émissions de gaz à effet de serre
Faible émission de GES
42
Forte émission de GES(kgeqCO2/m2/an)
Contact EVEIL IMMOBILIER
Contacter gratuitement à l'aide du formulaire ci-dessous.